広島市佐伯区観音台2丁目 新築一戸建て No.1
- 物件価格
- 3,480万円
- 所在地
- 広島市佐伯区観音台2丁目 No.1
- 交通
- –
- 最寄バス停
- 「東観音台中」 徒歩3分
- 学校区
- 五日市観音西小 / 五日市観音中
※学校区は住所から自動判定したものであり、保証できる情報ではございません。正確な学校区はお問い合わせ下さい。
- 物件更新日:
- 2026年03月24日
セールスポイント
【佐伯区観音台2丁目 新築戸建て住宅 No.1】
緑豊かな閑静な住宅街♪
敷地約45坪 2階建て3LDK+Sの新築戸建て登場☆
省エネ、安全性を実感できるオール電化♪
開放感あふれる対面式キッチン♪
収納豊富♪(SIC・WIC等)
お洗濯安心サンルーム完備♪
駐車場:3台可♪
南東向きにつき日当たり良好♪
公園すぐそばで子育て世代にもピッタリ☆
最寄りのバス停まで徒歩3分‼
◇◇同区画有◇◇
≪ご見学できます♪お気軽にお問い合わせください♪≫
~周辺環境~
・ファミリーマート 五日市城山南店:徒歩13分(約1000m)
・クスリ岩崎 五日市城山店:徒歩15分(約1200m)
・広島市立五日市観音西小学校:徒歩17分(約1100m)
・広島市立五日市観音中学校:徒歩17分(約1100m)
・五日市記念病院:徒歩12分(約900m)
・観音台東第二公園:徒歩1分(約88m)
《広島市佐伯区エリアの新築戸建て住宅、不動産情報は「住むりえ」にお任せください》
*****
◇住まいのことなら≪住むりえ≫に何でもお気軽にご相談ください♪♪
◇お客様のニーズに最適な一戸建て、マンション、土地などの不動産情報をご提供致します!!
◇注文住宅をご検討の方やリノベーション、売却をお考えの方もお気軽にご相談ください♪♪
「人型アイコン」を地図上にドラッグすることで『Google Street View』に切り替わります。
※地図上の「対象地」は「日本、〒731-5157 広島県広島市佐伯区観音台2丁目2−9」の場所を指しています。実際の場所ではない場合がございます。詳しくはお問い合わせください。
物件概要
| 種目 | 新築一戸建住宅 | ||
|---|---|---|---|
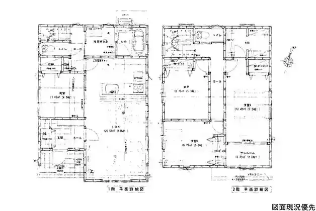
| 間取り | 3SLDK | 間取り内訳 | |
| 土地面積 | 151.93㎡ | 私道面積 | |
| 建物面積 | 105.16㎡ | 建物構造規模 | 木造 2階建 |
| 築年月(竣工月) | 2026年01月 | 駐車場 | 有 |
| 建ぺい率/容積率 | 50%/100% | 都市計画 | 市街化区域 |
| 接道状況 | 南東6.23m 公道 一方道路 | ||
| 地目 | |||
| 土地権利 | 所有権 | 地勢 | |
| 用途地域 | 第一種低層住居専用地域 | ||
| 現況 | 空家 | 取引態様 | 媒介 |
取引条件等
| 引渡し | 即時 |
|---|
その他
| 設備 | 温水洗浄便座、トイレ2ヶ所、追焚機能、浴室乾燥機、システムキッチン、カウンターキッチン、IHクッキングヒーター、浄水器、食器洗浄乾燥機、ウォークインクローゼット、床下収納、洗髪洗面化粧台、電気、上水道、下水道、複層ガラス、モニタ付インターホン、駐車場3台分、SIC、納戸(5.3帖)、サンルーム | ||
|---|---|---|---|
| 特徴 | 日当り良好、オール電化、24時間換気システム | ||
| 諸条件・相談 | ☆お客様のニーズに最適な一戸建て、マンション、土地などの不動産情報をご提供致します! | ||
| 情報登録日 | 2025年8月25日 | 情報更新予定日 | 2026年5月7日 |
| 物件番号 | 134197 | 建築確認番号 | 第HP16-4067835号 |