広島市南区宇品西2丁目 中古一戸建て
- 物件価格
- 6,300万円
- 所在地
- 広島市南区宇品西2丁目
- 交通
- 広電「宇品三丁目」 徒歩7分
- 最寄バス停
- 「御幸二丁目」 徒歩5分
- 学校区
- 宇品小 / 宇品中
※学校区は住所から自動判定したものであり、保証できる情報ではございません。正確な学校区はお問い合わせ下さい。
- 物件更新日:
- 2025年09月02日
セールスポイント
【南区宇品西2丁目 中古戸建て住宅】
生活利便施設が充実の宇品エリア☆
令和5年2月築の築浅物件♪♪
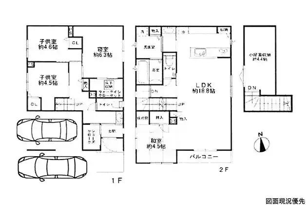
敷地約30坪 木造2階建て 4LDK♪
高断熱・高気密住宅!!
経済的なオール電化♪太陽光発電搭載♪
LDKは2階にありプライバシーを守れます☆
対面式キッチンで居心地の良い住空間♪
大容量の小屋裏収納付き♪
ビルトインガレージ:2台可‼
平坦地でお出かけラクラク♪
電停・バス停近く!全ての世代に優しい住環境☆
≪資料請求できます♪お問い合わせください♪≫
~周辺環境~
・スパーク 御幸の杜店:徒歩4分(約300m)
・プロマート 宇品店:徒歩4分(約300m)
・MEGAドン・キホーテ 宇品店:徒歩5分(約350m)
・広島市立宇品小学校:徒歩4分(約300m)
・広島市立宇品中学校:徒歩17分(約1200m)
・宇品御幸第一公園:徒歩4分(約350m)
《広島市南区エリアの中古戸建て住宅、不動産情報は「住むりえ」にお任せください》
*****
◇住まいのことなら≪住むりえ≫に何でもお気軽にご相談ください♪♪
◇お客様のニーズに最適な一戸建て、マンション、土地などの不動産情報をご提供致します!!
◇注文住宅をご検討の方やリノベーション、売却をお考えの方もお気軽にご相談ください♪♪
「人型アイコン」を地図上にドラッグすることで『Google Street View』に切り替わります。
※地図上の「対象地」は「日本、〒734-0014 広島県広島市南区宇品西2丁目13−13」の場所を指しています。実際の場所ではない場合がございます。詳しくはお問い合わせください。
物件概要
| 種目 | 中古一戸建住宅 | ||
|---|---|---|---|
| 間取り | 4LDK | 間取り内訳 | |
| 土地面積 | 100.55㎡ | 私道面積 | |
| 建物面積 | 101.31㎡ | 建物構造規模 | 木造 2階建 |
| 築年月(竣工月) | 2023年02月 | 駐車場 | 有 |
| 建ぺい率/容積率 | 60%/200% | 都市計画 | 市街化区域 |
| 接道状況 | 西6.3m 公道 接面11.9m | ||
| 地目 | 宅地 | ||
| 土地権利 | 所有権 | 地勢 | 平坦 |
| 用途地域 | 第一種住居地域 | ||
| 現況 | 所有者居住中 | 取引態様 | 媒介 |
取引条件等
| 引渡し | 相談 |
|---|
その他
| 設備 | トイレ2ヶ所、システムキッチン、カウンターキッチン、IHクッキングヒーター、ウォークインクローゼット、床下収納、グルニエ、上水道、下水道、モニタ付インターホン、駐車場2台分、SIC、小上がり和室、宅配Box | ||
|---|---|---|---|
| 特徴 | オール電化、太陽光発電、東宝ホーム施工、注文住宅、高断熱・高気密 | ||
| 諸条件・相談 | 北側隣地より建物の一部が越境(覚書有) ☆お客様のニーズに最適な一戸建て、マンション、土地などの不動産情報をご提供致します! | ||
| 情報登録日 | 2025年9月1日 | 情報更新予定日 | 2026年4月21日 |
| 物件番号 | 134443 | 建築確認番号 | |