廿日市市阿品2丁目 新築一戸建て
- 物件価格
- 3,780万円(↓2.6%値下がり)
- 所在地
- 廿日市市阿品2丁目
- 交通
- JR山陽本線「阿品」 徒歩4分
- 最寄バス停
- –
- 学校区
- 阿品台西小 / 阿品台中
※学校区は住所から自動判定したものであり、保証できる情報ではございません。正確な学校区はお問い合わせ下さい。
- 物件更新日:
- 2026年03月27日
- 写真入れ替え日:
- 2025年10月04日
- 価格改定日:
- 2026年03月26日
セールスポイント
【廿日市市阿品2丁目 新築戸建て住宅】
緑に癒される閑静な住宅地♪
JR・広電・バス利用可能な便利な立地♪
令和7年8月完成!敷地約37坪!2階建て3LDK+S☆
省エネ、安全性を実感できるオール電化♪
太陽光発電システム搭載!!
充実した設備が標準仕様☆
家族の会話が弾む対面式キッチン♪
リビングイン階段採用♪
角地につき日当り・通風良好♪
駐車場:2台可‼
生活施設は徒歩圏内♪
フジグランナタリー店まで車で約3分☆
≪ご見学できます♪お気軽にお問い合わせください♪≫
~周辺環境~
・ドラッグストア コスモス阿品店:徒歩6分(約450m)
・ピュアークック アジナモール店:徒歩17分(約1100m)
・ナフコ阿品店:徒歩15分(約1000m)
・廿日市市立阿品台西小学校:徒歩21分(約1300m)
・廿日市市立阿品台中学校:徒歩23分(約1500m)
《廿日市エリアの新築戸建て住宅、不動産情報は「住むりえ」にお任せください》
*****
◇住まいのことなら≪住むりえ≫に何でもお気軽にご相談ください♪♪
◇お客様のニーズに最適な一戸建て、マンション、土地などの不動産情報をご提供致します!!
◇注文住宅をご検討の方やリノベーション、売却をお考えの方もお気軽にご相談ください♪♪
「人型アイコン」を地図上にドラッグすることで『Google Street View』に切り替わります。
※地図上の「対象地」は「日本、〒738-0054 広島県廿日市市阿品2丁目12−8」の場所を指しています。実際の場所ではない場合がございます。詳しくはお問い合わせください。
物件概要
| 種目 | 新築一戸建住宅 | ||
|---|---|---|---|
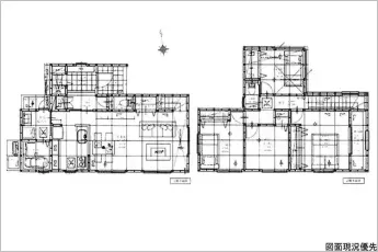
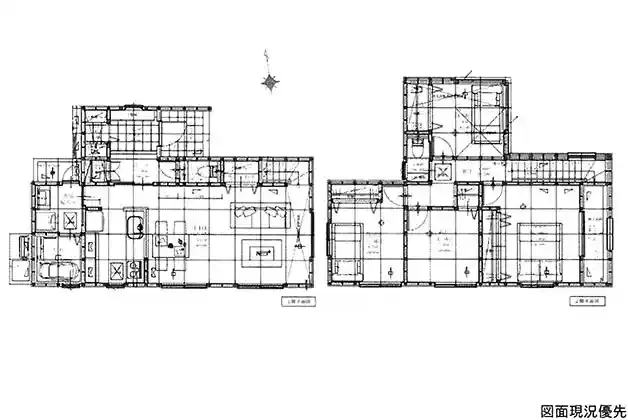
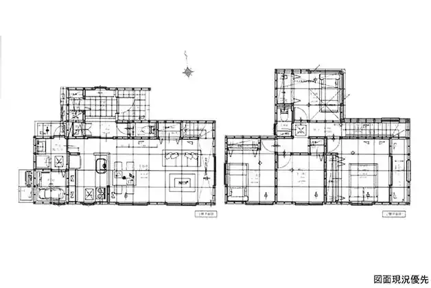
| 間取り | 3SLDK | 間取り内訳 | |
| 土地面積 | 123.79㎡ | 私道面積 | |
| 建物面積 | 103.38㎡ | 建物構造規模 | 木造 2階建 |
| 築年月(竣工月) | 2025年08月 | 駐車場 | 有 |
| 建ぺい率/容積率 | 60%/200% | 都市計画 | 市街化区域 |
| 接道状況 | 東4m 公道 接面11.9m 北西4.3m 私道 角地 | ||
| 地目 | |||
| 土地権利 | 所有権 | 地勢 | 平坦 |
| 用途地域 | 第一種住居地域 | ||
| 現況 | 空家 | 取引態様 | 媒介 |
取引条件等
| 引渡し | 即時 |
|---|
その他
| 設備 | 温水洗浄便座、トイレ2ヶ所、追焚機能、浴室乾燥機、システムキッチン、カウンターキッチン、IHクッキングヒーター、浄水器、食器洗浄乾燥機、床下収納、洗髪洗面化粧台、電気、上水道、浄化槽、複層ガラス、モニタ付インターホン、駐車場2台分、SIC、納戸(4.5帖)、リビング階段 | ||
|---|---|---|---|
| 特徴 | 日当り良好、オール電化、太陽光発電4.15kw | ||
| 諸条件・相談 | ☆お客様のニーズに最適な一戸建て、マンション、土地などの不動産情報をご提供致します! | ||
| 情報登録日 | 2025年9月11日 | 情報更新予定日 | 2026年5月12日 |
| 物件番号 | 134729 | 建築確認番号 | R06確認建築廿日市市00016号 |