広島市佐伯区美の里2丁目 新築一戸建て No.2
- 物件価格
- 3,390万円(↓15.0%値下がり)
- 所在地
- 広島市佐伯区美の里2丁目 No.2
- 交通
- 広電宮島線「山陽女学園前」 徒歩12分
- 最寄バス停
- 「桜尾」 徒歩8分
- 学校区
- 楽々園小 / 五日市南中
※学校区は住所から自動判定したものであり、保証できる情報ではございません。正確な学校区はお問い合わせ下さい。
- 物件更新日:
- 2026年04月21日
- 写真入れ替え日:
- 2026年02月27日
- 価格改定日:
- 2026年04月19日
セールスポイント
【佐伯区美の里2丁目 新築戸建て住宅No.2 角地】
利便性と閑静な住環境が調和した街♪
2階建て3LDKの新築戸建て登場☆
充実した設備が標準仕様♪♪
お洒落で開放的な折上天井が魅力のLDK♪
家族の会話が弾む対面式キッチン♪
収納充実プラン♪
駐車場:2台可(内軽自動車1台)
公園近く!お子様にも安心の住環境☆
買い物施設も徒歩圏内♪♪
≪ご見学できます♪お気軽にお問い合わせください♪≫
~周辺環境~
・ファミリーマート 隅の浜店:徒歩10分(約700m)
・ザグザグ 楽々園店:徒歩16分(約1200m)
・イオンタウン楽々園店:徒歩17分(約1200m)
・美の里公園:徒歩3分(約180m)
・広島市美の里保育園:徒歩10分(約750m)
・広島市立楽々園小学校:徒歩11分(約850m)
《広島市佐伯区エリアの新築戸建て住宅、不動産情報は「住むりえ」にお任せください♪》
*****
◇住まいのことなら≪住むりえ≫に何でもお気軽にご相談ください♪♪
◇お客様のニーズに最適な一戸建て、マンション、土地などの不動産情報をご提供致します!!
◇注文住宅をご検討の方やリノベーション、売却をお考えの方もお気軽にご相談ください♪♪
「人型アイコン」を地図上にドラッグすることで『Google Street View』に切り替わります。
※地図上の「対象地」は「日本、〒731-5137 広島県広島市佐伯区美の里2丁目12−15」の場所を指しています。実際の場所ではない場合がございます。詳しくはお問い合わせください。
物件概要
| 種目 | 新築一戸建住宅 | ||
|---|---|---|---|
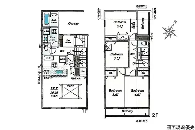
| 間取り | 3LDK | 間取り内訳 | |
| 土地面積 | 89.45㎡ | 私道面積 | |
| 建物面積 | 103.95㎡ | 建物構造規模 | 木造 2階建 |
| 築年月(竣工月) | 2026年02月 | 駐車場 | 有 |
| 建ぺい率/容積率 | 60%/200% | 都市計画 | 市街化区域 |
| 接道状況 | 北4m 公道 東4m 公道 角地 | ||
| 地目 | |||
| 土地権利 | 所有権 | 地勢 | 平坦 |
| 用途地域 | 第二種中高層住居専用地域 | ||
| 現況 | 空家 | 取引態様 | 媒介 |
取引条件等
| 引渡し | 即時 |
|---|
その他
| 設備 | 温水洗浄便座、トイレ2ヶ所、追焚機能、浴室乾燥機、システムキッチン、カウンターキッチン、浄水器、食器洗浄乾燥機、床下収納、洗髪洗面化粧台、照明器具、電気、都市ガス、上水道、下水道、複層ガラス、モニタ付インターホン、駐車場2台分、収納充実、折上天井 | ||
|---|---|---|---|
| 特徴 | 日当り良好、制振ダンパー、耐震等級3の住宅性能評価、長期優良住宅、エネルギー消費性能星3つ、無料点検実施(引渡後3ヶ月・2年・5年・10年) | ||
| 諸条件・相談 | 表記建物面積は車庫部分8.94㎡含む ☆お客様のニーズに最適な一戸建て、マンション、土地などの不動産情報をご提供致します! | ||
| 情報登録日 | 2025年11月10日 | 情報更新予定日 | 2026年5月5日 |
| 物件番号 | 136624 | 建築確認番号 | 第R07SHC120948号 |