広島市佐伯区八幡が丘2丁目 新築一戸建て
- 物件価格
- 3,380万円(↓5.6%値下がり)
- 所在地
- 広島市佐伯区八幡が丘2丁目
- 交通
- –
- 最寄バス停
- 「八幡学校」 徒歩11分
- 学校区
- 八幡小 / 城山中
※学校区は住所から自動判定したものであり、保証できる情報ではございません。正確な学校区はお問い合わせ下さい。
- 物件更新日:
- 2026年04月12日
- 写真入れ替え日:
- 2026年02月19日
- 価格改定日:
- 2026年04月11日
セールスポイント
【佐伯区八幡が丘2丁目 新築戸建て住宅】
ゆったりと時が流れる落ちついた住宅街♪
敷地約50坪!2階建て4LDKの新築戸建て登場☆
充実した設備が標準仕様♪♪
対面式キッチンで居心地の良い住空間♪
LDKに隣り合うくつろぎの和室は約5.2帖♪
駐車場:2台可‼
宅配Box完備♪
公園近く!のびのびと子育てができます☆
自然に囲まれたゆとりある空間♪♪
*長期優良住宅*耐震等級3*断熱等級6*
≪ご見学できます♪お気軽にお問い合わせください♪≫
~周辺環境~
・ダイソー 五日市八幡店:徒歩10分(約750m)
・ウォンツ八幡3号店:徒歩10分(約800m)
・ザ・ビッグ 五日市店:徒歩13分(約1000m)
・広島市立八幡小学校:徒歩10分(約800m)
・広島市立城山中学校:徒歩20分(約1500m)
・八幡ヶ丘第二公園:徒歩4分(約300m)
《広島市佐伯区エリアの新築戸建て住宅、不動産情報は「住むりえ」にお任せください》
*****
◇住まいのことなら≪住むりえ≫に何でもお気軽にご相談ください♪♪
◇お客様のニーズに最適な一戸建て、マンション、土地などの不動産情報をご提供致します!!
◇注文住宅をご検討の方やリノベーション、売却をお考えの方もお気軽にご相談ください♪♪
「人型アイコン」を地図上にドラッグすることで『Google Street View』に切り替わります。
※地図上の「対象地」は「日本、〒731-5117 広島県広島市佐伯区八幡が丘2丁目11−20」の場所を指しています。実際の場所ではない場合がございます。詳しくはお問い合わせください。
物件概要
| 種目 | 新築一戸建住宅 | ||
|---|---|---|---|
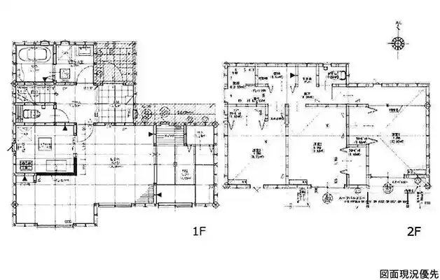
| 間取り | 4LDK | 間取り内訳 | |
| 土地面積 | 166.33㎡ | 私道面積 | |
| 建物面積 | 99.36㎡ | 建物構造規模 | 木造 2階建 |
| 築年月(竣工月) | 2026年02月 | 駐車場 | 有 |
| 建ぺい率/容積率 | 50%/100% | 都市計画 | 市街化区域 |
| 接道状況 | 北6m 公道 一方道路 | ||
| 地目 | |||
| 土地権利 | 所有権 | 地勢 | |
| 用途地域 | 第一種低層住居専用地域 | ||
| 現況 | 空家 | 取引態様 | 媒介 |
取引条件等
| 引渡し | 即時 |
|---|
その他
| 設備 | 温水洗浄便座、トイレ2ヶ所、追焚機能、浴室乾燥機、システムキッチン、カウンターキッチン、浄水器、床下収納、洗髪洗面化粧台、照明器具、電気、都市ガス、上水道、下水道、複層ガラス、モニタ付インターホン、防犯カメラ、駐車場2台分、宅配Box | ||
|---|---|---|---|
| 特徴 | バリアフリー、24時間換気システム、長期優良住宅、住宅性能表示W取得(設計性能+建設性能)、耐震等級3、断熱等級6 | ||
| 諸条件・相談 | 定期点検実施 ☆お客様のニーズに最適な一戸建て、マンション、土地などの不動産情報をご提供致します! | ||
| 情報登録日 | 2025年11月10日 | 情報更新予定日 | 2026年4月26日 |
| 物件番号 | 136634 | 建築確認番号 | 第R07SHC116875号 |