廿日市市阿品台4丁目 新築一戸建て No.2
- 物件価格
- 3,080万円(↓3.1%値下がり)
- 所在地
- 廿日市市阿品台4丁目 No.2
- 交通
- JR山陽本線「阿品」 徒歩19分
- 最寄バス停
- –
- 学校区
- 阿品台東小 /-
※学校区は住所から自動判定したものであり、保証できる情報ではございません。正確な学校区はお問い合わせ下さい。
- 物件更新日:
- 2026年04月12日
- 写真入れ替え日:
- 2026年02月14日
- 価格改定日:
- 2026年04月11日
セールスポイント
【廿日市市阿品台4丁目 新築戸建て住宅 No.2】
区画の整った閑静な街並み♪
敷地約35坪。2階建て3LDKの新築戸建て登場☆
充実した設備が標準仕様♪♪
対面式キッチンで居心地の良い住空間♪
収納力豊富なWIC設置♪
角地につき日当り・通風良好♪
買物施設や教育施設は徒歩圏内♪
家族の生活に優しい立地です☆
*長期優良住宅*耐震等級3*断熱等級6*
≪ご見学できます♪お気軽にお問い合わせください♪≫
~周辺環境~
・ピュアークック アジナモール店:徒歩5分(約400m)
・ナフコ阿品店:徒歩7分(約500m)
・阿品台郵便局:徒歩3分(約250m)
・阿品台東保育園:徒歩9分(約600m)
・廿日市市立阿品台東小学校:徒歩12分(約850m)
・廿日市市立阿品台中学校:徒歩13分(約850m)
・阿品公園:徒歩2分(約130m)
《廿日市エリアの新築戸建て住宅、不動産情報は「住むりえ」にお任せください》
*****
◇住まいのことなら≪住むりえ≫に何でもお気軽にご相談ください♪♪
◇お客様のニーズに最適な一戸建て、マンション、土地などの不動産情報をご提供致します!!
◇注文住宅をご検討の方やリノベーション、売却をお考えの方もお気軽にご相談ください♪♪
「人型アイコン」を地図上にドラッグすることで『Google Street View』に切り替わります。
※地図上の「対象地」は「日本、〒738-0053 広島県廿日市市阿品台4丁目8−15」の場所を指しています。実際の場所ではない場合がございます。詳しくはお問い合わせください。
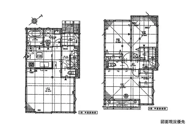
物件概要
| 種目 | 新築一戸建住宅 | ||
|---|---|---|---|
| 間取り | 3LDK | 間取り内訳 | |
| 土地面積 | 117.12㎡ | 私道面積 | |
| 建物面積 | 91.49㎡ | 建物構造規模 | 木造 2階建 |
| 築年月(竣工月) | 2026年02月 | 駐車場 | 有 |
| 建ぺい率/容積率 | 50%/80% | 都市計画 | 市街化区域 |
| 接道状況 | 北西7m 公道 北東5m 公道 角地 | ||
| 地目 | |||
| 土地権利 | 所有権 | 地勢 | |
| 用途地域 | 第一種低層住居専用地域 | ||
| 現況 | 空家 | 取引態様 | 媒介 |
取引条件等
| 引渡し | 即時 |
|---|
その他
| 設備 | 温水洗浄便座、トイレ2ヶ所、追焚機能、浴室乾燥機、システムキッチン、カウンターキッチン、浄水器、ウォークインクローゼット、床下収納、洗髪洗面化粧台、照明器具、電気、都市ガス、上水道、下水道、複層ガラス、モニタ付インターホン、駐車場2台分、宅配Box | ||
|---|---|---|---|
| 特徴 | 日当り良好、バリアフリー、24時間換気システム、長期優良住宅、住宅性能表示W取得(設計性能+建設性能)、耐震等級3、断熱等級6、定期点検実施 | ||
| 諸条件・相談 | 閑静な住宅街 ☆お客様のニーズに最適な一戸建て、マンション、土地などの不動産情報をご提供致します! | ||
| 情報登録日 | 2025年11月28日 | 情報更新予定日 | 2026年5月2日 |
| 物件番号 | 137170 | 建築確認番号 | 第R07SHC119438号 |