廿日市市地御前4丁目 中古一戸建て
- 物件価格
- 2,300万円(↓7.3%値下がり)
- 所在地
- 廿日市市地御前4丁目
- 交通
- 広電宮島線「地御前」 徒歩10分
- 最寄バス停
- 「地御前」 徒歩11分
- 学校区
- 地御前小 / 野坂中
※学校区は住所から自動判定したものであり、保証できる情報ではございません。正確な学校区はお問い合わせ下さい。
- 物件更新日:
- 2026年02月18日
- 価格改定日:
- 2026年02月17日
セールスポイント
【廿日市市地御前4丁目 中古戸建て住宅】
海と緑に囲まれた閑静な住宅街♪
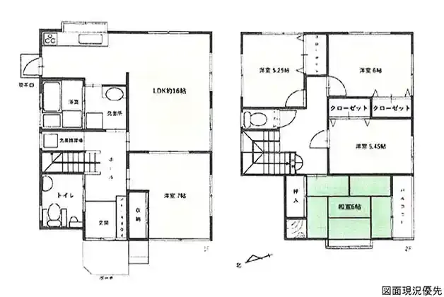
敷地約41坪 平成9年築 2階建ての5LDK☆
1階はバリアフリーにリフォーム工事済♪
オール電化で快適エコ生活♪♪
カーポート付き駐車場:並列2台可(車種による)
西広島バイパスへのアクセス良好‼
広電「地御前」電停まで徒歩10分♪
公園や小学校が近く子育て世代にも最適☆
≪ご見学できます♪お気軽にお問い合わせください♪≫
~周辺環境~
・桃山公園:徒歩1分(約20m)
・セブン-イレブン 廿日市地御前北3丁目店:徒歩13分(約950m)
・地御前保育園:徒歩12分(約850m)
・廿日市市立地御前小学校:徒歩8分(約600m)
・廿日市市立野坂中学校:徒歩16分(約1100m)
《廿日市エリアの中古戸建て住宅、不動産情報は「住むりえ」にお任せください♪》
*****
◇住まいのことなら≪住むりえ≫に何でもお気軽にご相談ください♪♪
◇お客様のニーズに最適な一戸建て、マンション、土地などの不動産情報をご提供致します!!
◇注文住宅をご検討の方やリノベーション、売却をお考えの方もお気軽にご相談ください♪♪
「人型アイコン」を地図上にドラッグすることで『Google Street View』に切り替わります。
※地図上の「対象地」は「日本、〒738-0042 広島県廿日市市地御前4丁目15−57」の場所を指しています。実際の場所ではない場合がございます。詳しくはお問い合わせください。
物件概要
| 種目 | 中古一戸建住宅 | ||
|---|---|---|---|
| 間取り | 5LDK | 間取り内訳 | |
| 土地面積 | 138.5㎡ | 私道面積 | |
| 建物面積 | 112.61㎡ | 建物構造規模 | 軽量鉄骨 2階建 |
| 築年月(竣工月) | 1997年12月 | 駐車場 | 有 |
| 建ぺい率/容積率 | 60%/200% | 都市計画 | 市街化区域 |
| 接道状況 | 西6m 公道 接面9.2m 一方道路 | ||
| 地目 | |||
| 土地権利 | 所有権 | 地勢 | |
| 用途地域 | 第二種中高層住居専用地域 | ||
| 現況 | 空家 | 取引態様 | 媒介 |
取引条件等
| 引渡し | 相談 |
|---|
その他
| 設備 | トイレ2ヶ所、IHクッキングヒーター、上水道、下水道、駐車場2台分 | ||
|---|---|---|---|
| 特徴 | バリアフリー、オール電化、1階はバリアフリーにリフォーム工事済(車椅子の生活にも対応) | ||
| 諸条件・相談 | 奥行:14.9m ☆お客様のニーズに最適な一戸建て、マンション、土地などの不動産情報をご提供致します! | ||
| 情報登録日 | 2025年12月5日 | 情報更新予定日 | 2026年5月16日 |
| 物件番号 | 137365 | 建築確認番号 | |