広島市南区向洋新町1丁目 新築一戸建て No.2
- 物件価格
- 3,890万円(↓2.5%値下がり)
- 所在地
- 広島市南区向洋新町1丁目 No.2
- 交通
- –
- 最寄バス停
- 「向洋新町1丁目」 徒歩3分
- 学校区
- 向洋新町小 / 大州中
※学校区は住所から自動判定したものであり、保証できる情報ではございません。正確な学校区はお問い合わせ下さい。
- 物件更新日:
- 2026年05月07日
- 価格改定日:
- 2026年04月22日
セールスポイント
【南区向洋新町1丁目 新築戸建て住宅 No.2】
海や緑の自然を感じられる地♪
2階建て3LDKの新築戸建て登場☆
*設計・建設性能評価書取得、耐震等級3*
LDKは約17帖。ゆとりの空間♪
開放感あふれる対面式キッチン♪
収納豊富♪(SIC・WIC等)
駐車場:2台可‼
公園や小学校が近く子育て環境良好☆
スーパ徒歩圏内♪♪
≪ご見学できます♪お問い合わせください♪≫
~周辺環境~
・ピュアークック洋光台店:徒歩3分(約230m)
・ローソン向洋大原町店:徒歩14分(約1100m)
・広島市立向洋新町小学校:徒歩5分(約350m)
・洋光幼稚園:徒歩11分(約800m)
・洋光台第一公園:徒歩2分(約160m)
《広島市南区エリアの新築戸建て住宅、不動産情報は「住むりえ」にお任せください》
*****
◇住まいのことなら≪住むりえ≫に何でもお気軽にご相談ください♪♪
◇お客様のニーズに最適な一戸建て、マンション、土地などの不動産情報をご提供致します!!
◇注文住宅をご検討の方やリノベーション、売却をお考えの方もお気軽にご相談ください♪♪
「人型アイコン」を地図上にドラッグすることで『Google Street View』に切り替わります。
※地図上の「対象地」は「」の場所を指しています。実際の場所ではない場合がございます。詳しくはお問い合わせください。
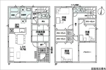
物件概要
| 種目 | 新築一戸建住宅 | ||
|---|---|---|---|
| 間取り | 3LDK | 間取り内訳 | |
| 土地面積 | 91.59㎡ | 私道面積 | |
| 建物面積 | 94.4㎡ | 建物構造規模 | 木造 2階建 |
| 築年月(竣工月) | 2026年05月 | 駐車場 | 有 |
| 建ぺい率/容積率 | 60%/200% | 都市計画 | 市街化区域 |
| 接道状況 | 北西6.3m 公道 一方道路 | ||
| 地目 | |||
| 土地権利 | 所有権 | 地勢 | |
| 用途地域 | 第二種中高層住居専用地域 | ||
| 現況 | 未完成 | 取引態様 | 媒介 |
取引条件等
| 引渡し | 即時 |
|---|
その他
| 設備 | トイレ2ヶ所、システムキッチン、カウンターキッチン、ウォークインクローゼット、床下収納、洗髪洗面化粧台、都市ガス、上水道、下水道、複層ガラス、モニタ付インターホン、駐車場2台分、SIC | ||
|---|---|---|---|
| 特徴 | 設計・建設性能評価書取得、耐震等級3、フラット35S金利Aプラン、地盤保証20年、長期優良住宅取得予定 | ||
| 諸条件・相談 | 引渡後無料点検(6ヶ月・2年・5年) ☆お客様のニーズに最適な一戸建て、マンション、土地などの不動産情報をご提供致します! | ||
| 情報登録日 | 2026年2月5日 | 情報更新予定日 | 2026年5月26日 |
| 物件番号 | 139179 | 建築確認番号 | 第R07SHC127126号 |