広島市南区向洋新町2丁目 新築一戸建て No.2
- 物件価格
- 4,180万円
- 所在地
- 広島市南区向洋新町2丁目 No.2
- 交通
- –
- 最寄バス停
- 「向洋新町三丁目」 徒歩2分
- 学校区
- 向洋新町小 / 大州中
※学校区は住所から自動判定したものであり、保証できる情報ではございません。正確な学校区はお問い合わせ下さい。
- 物件更新日:
- 2026年04月20日
セールスポイント
【南区向洋新町2丁目 新築戸建て住宅 No.2】
落ち着きのある閑静な地♪
2階建て2LDK+Sの新築戸建て登場☆
水回りが集中した家事動線の良い間取り♪
家族の会話が弾む対面式キッチン♪
豊富な収納スぺース♪
駐車場:並列2台可(車種による)
防犯カメラ付で安心‼
公園・小学校・スーパー・コンビニ近く♪
ファミリーに適した街☆
◇◇同区画:No.1(4.180万円)有◇◇
≪資料請求できます♪お問い合わせください♪≫
~周辺環境~
・ピュアークック 洋光台店:徒歩5分(約350m)
・ローソン 向洋大原町店:徒歩8分(約600m)
・洋光幼稚園:徒歩10分(約750m)
・広島市立向洋新町小学校:徒歩6分(約400m)
・洋光台第二公園:徒歩2分(約160m)
《広島市南区エリアの新築戸建て住宅、不動産情報は「住むりえ」にお任せください》
*****
◇住まいのことなら≪住むりえ≫に何でもお気軽にご相談ください♪♪
◇お客様のニーズに最適な一戸建て、マンション、土地などの不動産情報をご提供致します!!
◇注文住宅をご検討の方やリノベーション、売却をお考えの方もお気軽にご相談ください♪♪
「人型アイコン」を地図上にドラッグすることで『Google Street View』に切り替わります。
※地図上の「対象地」は「日本、〒734-0055 広島県広島市南区向洋新町2丁目9−17」の場所を指しています。実際の場所ではない場合がございます。詳しくはお問い合わせください。
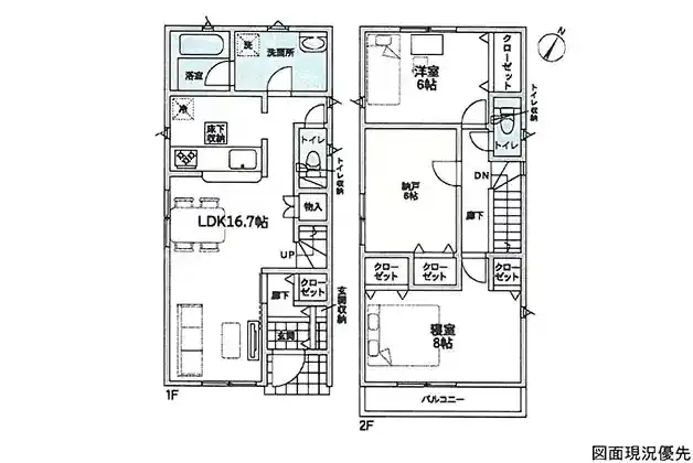
物件概要
| 種目 | 新築一戸建住宅 | ||
|---|---|---|---|
| 間取り | 2SLDK | 間取り内訳 | |
| 土地面積 | 97.62㎡ | 私道面積 | |
| 建物面積 | 87.48㎡ | 建物構造規模 | 木造 2階建 |
| 築年月(竣工月) | 2026年06月 | 駐車場 | 有 |
| 建ぺい率/容積率 | 60%/200% | 都市計画 | 市街化区域 |
| 接道状況 | 南東6.2m 公道 一方道路 | ||
| 地目 | 宅地 | ||
| 土地権利 | 所有権 | 地勢 | |
| 用途地域 | 第二種中高層住居専用地域 | ||
| 現況 | 未完成 | 取引態様 | 媒介 |
取引条件等
| 引渡し | 相談 |
|---|
その他
| 設備 | 温水洗浄便座、トイレ2ヶ所、浴室乾燥機、システムキッチン、カウンターキッチン、床下収納、洗髪洗面化粧台、都市ガス、上水道、下水道、モニタ付インターホン、防犯カメラ、駐車場2台分、納戸(6帖)、玄関収納、リビング階段 | ||
|---|---|---|---|
| 特徴 | 日当り良好、耐震等級3、省エネ性能ラベル有、住宅性能評価取得 | ||
| 諸条件・相談 | 越境物有(覚書取得済) ☆お客様のニーズに最適な一戸建て、マンション、土地などの不動産情報をご提供致します! | ||
| 情報登録日 | 2026年2月13日 | 情報更新予定日 | 2026年5月26日 |
| 物件番号 | 139382 | 建築確認番号 | 第R07SHC126342号 |