広島市安佐南区山本6丁目 中古一戸建て ☆リフォーム☆
- 物件価格
- 1,880万円(↓9.6%値下がり)
- 所在地
- 広島市安佐南区山本6丁目 ☆リフォーム☆
- 交通
- –
- 最寄バス停
- 「春日野下」 徒歩7分
- 学校区
- 山本小 / 祇園中
※学校区は住所から自動判定したものであり、保証できる情報ではございません。正確な学校区はお問い合わせ下さい。
- 物件更新日:
- 2026年04月02日
- 価格改定日:
- 2026年03月28日
セールスポイント
【安佐南区山本6丁目 中古戸建て住宅】
緑豊かで心静かに過ごせる落ち着いた環境♪
敷地約35坪 木造2階建て 平成12年築 3LDK☆
2025年12月リフォーム完了♪♪
省エネ、安全性を実感できるオール電化♪
心地良さと安らぎの快適設備も充実☆
家族の会話が弾む対面式キッチン♪
食器洗乾燥機・浴室乾燥機付き♪
陽当り・通風良好♪
駐車場:2台可♪
周辺交通量少なめでお子様にも安心☆
最寄りのバス停まで徒歩7分‼
≪ご見学できます♪お気軽にお問い合わせください♪≫
~周辺環境~
・正田公園:徒歩4分(約290m)
・広島市立山本保育園:徒歩16分(約1200m)
・広島市立山本小学校:徒歩20分(約1500m)
・広島市立祇園中学校:徒歩36分(約2600m)
・ローソン広島山本七丁目店:徒歩14分(約1100m)
・マルショク山本店:徒歩22分(約1700m)
《広島市安佐南区エリアの中古戸建て住宅、不動産情報は「住むりえ」にお任せください♪》
*****
◇住まいのことなら≪住むりえ≫に何でもお気軽にご相談ください♪♪
◇お客様のニーズに最適な一戸建て、マンション、土地などの不動産情報をご提供致します!!
◇注文住宅をご検討の方やリノベーション、売却をお考えの方もお気軽にご相談ください♪♪
「人型アイコン」を地図上にドラッグすることで『Google Street View』に切り替わります。
※地図上の「対象地」は「日本、〒731-0137 広島県広島市安佐南区山本6丁目21−4」の場所を指しています。実際の場所ではない場合がございます。詳しくはお問い合わせください。
物件概要
| 種目 | 中古一戸建住宅 | ||
|---|---|---|---|
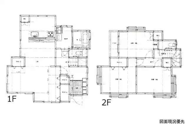
| 間取り | 3LDK | 間取り内訳 | |
| 土地面積 | 116.62㎡ | 私道面積 | |
| 建物面積 | 92.2㎡ | 建物構造規模 | 木造 2階建 |
| 築年月(竣工月) | 2000年01月 | 駐車場 | 有 |
| 建ぺい率/容積率 | 50%/100% | 都市計画 | 市街化区域 |
| 接道状況 | 南東 一方道路 | ||
| 地目 | |||
| 土地権利 | 所有権 | 地勢 | |
| 用途地域 | 第一種低層住居専用地域 | ||
| 現況 | 空家 | 取引態様 | 媒介 |
取引条件等
| 引渡し | 即時 |
|---|
その他
| 設備 | 温水洗浄便座、トイレ2ヶ所、浴室乾燥機、システムキッチン、カウンターキッチン、IHクッキングヒーター、食器洗浄乾燥機、ウォークインクローゼット、上水道、下水道、モニタ付インターホン、駐車場2台分、全居室収納 | ||
|---|---|---|---|
| 特徴 | 日当り良好、バリアフリー、オール電化、通風良好、2025年12月リフォーム完了:キッチン・浴室・トイレ・、内装:壁・床・全室 フローリング | ||
| 諸条件・相談 | 閑静な住宅地 ☆お客様のニーズに最適な一戸建て、マンション、土地などの不動産情報をご提供致します! | ||
| 情報登録日 | 2026年2月24日 | 情報更新予定日 | 2026年4月16日 |
| 物件番号 | 139722 | 建築確認番号 | |