廿日市市住吉1丁目 新築一戸建て
- 物件価格
- 3,880万円
- 所在地
- 廿日市市住吉1丁目
- 交通
- JR山陽本線「廿日市」 徒歩14分
- 最寄バス停
- –
- 学校区
- 廿日市小 /-
※学校区は住所から自動判定したものであり、保証できる情報ではございません。正確な学校区はお問い合わせ下さい。
- 物件更新日:
- 2026年04月16日
セールスポイント
【廿日市市住吉1丁目 新築戸建て住宅】
平地の閑静な住宅地♪
2階建て2LDK+Sの新築戸建て登場☆
*設計・建設性能評価取得*耐震等級3*
充実した設備が標準仕様♪♪
対面式キッチンで居心地の良い住空間♪
収納力豊富なWIC設置♪
駐車場:2台可‼
充実の周辺環境♪
保育園・小学校・公園近く。お子様も安心♪
広電・JR・バス利用可能で交通利便性良好☆
≪資料請求できます♪お問い合わせください♪≫
~周辺環境~
・フレスタ 廿日市住吉店:徒歩6分(約450m)
・クスリ岩崎 広島廿日市店:徒歩5分(約400m)
・セブン-イレブン 廿日市本町店:徒歩6分(約400m)
・アイグラン保育園 住吉:徒歩5分(約350m)
・廿日市市立廿日市小学校:徒歩7分(約450m)
・廿日市市立廿日市中学校:徒歩20分(約1400m)
・住吉第2公園:徒歩1分(約95m)
《廿日市エリアの新築戸建て住宅、不動産情報は「住むりえ」にお任せください♪》
*****
◇住まいのことなら≪住むりえ≫に何でもお気軽にご相談ください♪♪
◇お客様のニーズに最適な一戸建て、マンション、土地などの不動産情報をご提供致します!!
◇注文住宅をご検討の方やリノベーション、売却をお考えの方もお気軽にご相談ください♪♪
「人型アイコン」を地図上にドラッグすることで『Google Street View』に切り替わります。
※地図上の「対象地」は「日本、〒738-0014 広島県廿日市市住吉1丁目13−15」の場所を指しています。実際の場所ではない場合がございます。詳しくはお問い合わせください。
物件概要
| 種目 | 新築一戸建住宅 | ||
|---|---|---|---|
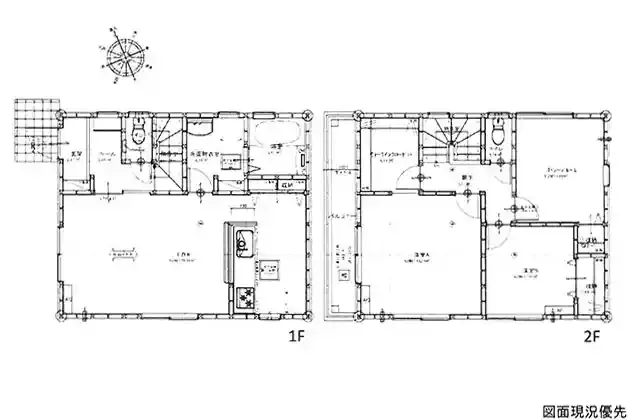
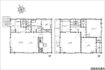
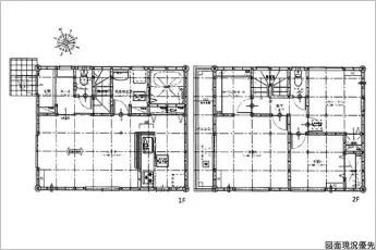
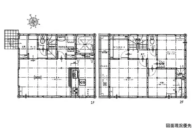
| 間取り | 2SLDK | 間取り内訳 | |
| 土地面積 | 96.35㎡ | 私道面積 | |
| 建物面積 | 86.12㎡ | 建物構造規模 | 木造 2階建 |
| 築年月(竣工月) | 2026年05月 | 駐車場 | 有 |
| 建ぺい率/容積率 | 60%/200% | 都市計画 | 市街化区域 |
| 接道状況 | 北西4.12m 公道 一方道路 | ||
| 地目 | |||
| 土地権利 | 所有権 | 地勢 | 平坦 |
| 用途地域 | 第一種住居地域 | ||
| 現況 | 未完成 | 取引態様 | 媒介 |
取引条件等
| 引渡し | 相談 |
|---|
その他
| 設備 | 温水洗浄便座、トイレ2ヶ所、浴室乾燥機、システムキッチン、カウンターキッチン、浄水器、ウォークインクローゼット、床下収納、洗髪洗面化粧台、都市ガス、上水道、下水道、複層ガラス、モニタ付インターホン、駐車場2台分 | ||
|---|---|---|---|
| 特徴 | バリアフリー、24時間換気システム、設計・建設性能評価取得、耐震等級3、フラット35S(金利Aプラン)、地盤保証20年、主要構造部分35年住宅保証システム(有償修繕工事継続による)、長期優良住宅 | ||
| 諸条件・相談 | 引渡後無料点検実施(6ヶ月・2年・5年・10年の計4回) ☆お客様のニーズに最適な一戸建て、マンション、土地などの不動産情報をご提供致します! | ||
| 情報登録日 | 2026年2月26日 | 情報更新予定日 | 2026年4月30日 |
| 物件番号 | 139744 | 建築確認番号 | 第R08SHC100968号 |