広島市東区中山新町1丁目 新築一戸建て No.1
- 物件価格
- 3,280万円
- 所在地
- 広島市東区中山新町1丁目 No.1
- 交通
- JR芸備線「戸坂」 徒歩30分
- 最寄バス停
- 「戸坂中学校」 徒歩5分
- 学校区
- 東浄小 / 戸坂中
※学校区は住所から自動判定したものであり、保証できる情報ではございません。正確な学校区はお問い合わせ下さい。
- 物件更新日:
- 2026年04月05日
セールスポイント
【東区中山新町1丁目 新築戸建て No.1】
耐震等級3☆住宅性能評価取得☆
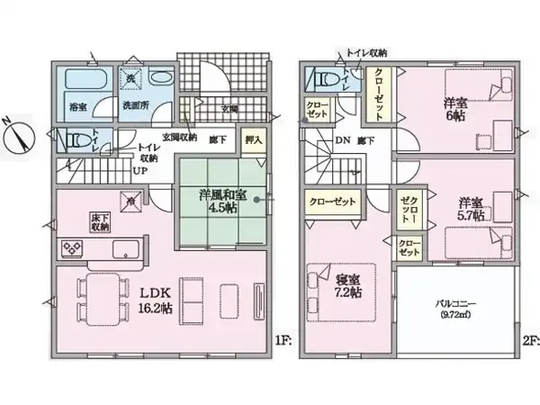
ファミリータイプの4LDK♪
LDKは約16.2帖!広々空間♪
開放感あふれる対面式キッチン♪
収納の豊富さも魅力♪
駐車場:2台可(車種による)
モニター付きインターホン&防犯カメラでセキュリティ充実☆
公園や小学校が近く子育て世代にも適す☆
≪現地案内、資料請求など、お気軽にお問い合わせください≫
○住まいのことなら≪住むりえ≫に何でもお気軽にご相談ください♪♪
○お客様のニーズに最適な一戸建て、マンション、土地などの不動産情報をご提供致します!!
○住宅ローンについて、わかりやすくご説明いたします。
○住み替え、売却をお考えの方もお気軽にご相談ください♪♪
担当者より
「人型アイコン」を地図上にドラッグすることで『Google Street View』に切り替わります。
※地図上の「対象地」は「日本、〒732-0021 広島県広島市東区中山新町1丁目6−12」の場所を指しています。実際の場所ではない場合がございます。詳しくはお問い合わせください。
物件概要
| 種目 | 新築一戸建住宅 | ||
|---|---|---|---|
| 間取り | 4LDK | 間取り内訳 | |
| 土地面積 | 199.16㎡ | 私道面積 | |
| 建物面積 | 105.29㎡ | 建物構造規模 | 木造 2階建 |
| 築年月(竣工月) | 2026年07月 | 駐車場 | 有 |
| 建ぺい率/容積率 | 50%/100% | 都市計画 | 市街化区域 |
| 接道状況 | 南東4.2m 公道 | ||
| 地目 | 宅地 | ||
| 土地権利 | 所有権 | 地勢 | |
| 用途地域 | 第一種低層住居専用地域 | ||
| 現況 | 未完成 | 取引態様 | 媒介 |
取引条件等
| 引渡し | 期日指定 2026年7月下旬 |
|---|
その他
| 設備 | 温水洗浄便座、トイレ2ヶ所、浴室乾燥機、システムキッチン、カウンターキッチン、浄水器、床下収納、洗髪洗面化粧台、電気、都市ガス、上水道、下水道、複層ガラス、モニタ付インターホン、防犯カメラ、駐車場2台分 | ||
|---|---|---|---|
| 特徴 | 日当り良好、24時間換気システム、住宅性能保証付 | ||
| 諸条件・相談 | 網戸・シャッター・カーテンレール等についてはオプション工事 | ||
| 情報登録日 | 2026年4月4日 | 情報更新予定日 | 2026年5月26日 |
| 物件番号 | 140991 | 建築確認番号 | 第R08SHC102404 |
※土地面積は共用道路約52.39㎡を含む
※ルースバルコニーを除いた建物面積:95.57㎡
~周辺環境~
セブン-イレブン 広島戸坂南店まで徒歩5分(約300m)
ローソン 広島戸坂新町店まで徒歩4分(約270m)
広島市立東浄小学校まで徒歩8分(約500m)
広島市立戸坂中学校まで徒歩11分(約800m)