サーパス五日市南
- 物件価格
- 2,800万円
- 所在地
- 広島市佐伯区海老園4丁目6-16 サーパス五日市南507
- 交通
- 広電宮島線「楽々園」 徒歩14分
- 最寄バス停
- –
- 学校区
- 五日市南小 / 五日市南中
※学校区は住所から自動判定したものであり、保証できる情報ではございません。正確な学校区はお問い合わせ下さい。
- 物件更新日:
- 2026年04月18日
セールスポイント
【サーパス五日市南】
佐伯区海老園4丁目の中古マンション!
利便と静寂が同居する平坦な地♪
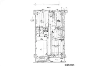
6階建て5階部分。専有面積70.53㎡の3LDK☆
南向きバルコニー!日当り・通風良好♪
オーシャンビューマンション♪♪
対面式キッチンで居心地の良い住空間♪
買物施設は徒歩圏内☆
保育園・小学校・中学校が近く安心‼
子育て世代にもおすすめです♪♪
≪ご見学できます♪お気軽にお問い合わせください♪≫
~周辺環境~
・フレスタ海老園店:徒歩5分(約400m)
・ウォンツ 海老園店:徒歩6分(約450m)
・イオンタウン楽々園:徒歩13分(約1000m)
・五日市南保育園:徒歩4分(約300m)
・広島市立五日市南小学校:徒歩8分(約550m)
・広島市立五日市南中学校:徒歩4分(約280m)
・楽々園クリニックビル:徒歩13分(約950m)
《広島市佐伯区エリアの中古マンション、不動産情報は「住むりえ」にお任せください》
*****
◇住まいのことなら≪住むりえ≫に何でもお気軽にご相談ください♪♪
◇お客様のニーズに最適な一戸建て、マンション、土地などの不動産情報をご提供致します!!
◇注文住宅をご検討の方やリノベーション、売却をお考えの方もお気軽にご相談ください♪♪
「人型アイコン」を地図上にドラッグすることで『Google Street View』に切り替わります。
※地図上の「対象地」は「日本、〒731-5135 広島県広島市佐伯区海老園4丁目6−16 サーパス五日市南」の場所を指しています。実際の場所ではない場合がございます。詳しくはお問い合わせください。
物件概要
| 種目 | 中古マンション | ||
|---|---|---|---|
| 間取り | 3LDK | 間取り内訳 | |
| 専有面積 | 70.53㎡ | 建物構造 | RC |
| バルコニー面積 | 5.83㎡ | 向き | 南 |
| 階数 | 6階建 | 所在階 | 5階 |
| 築年月(竣工月) | 2001年10月 | 駐車場有無 | |
| 駐車場料金 | 総戸数 | 36 | |
| 管理費 | 10,600円 | 積立金 | 19,700円 |
| 土地権利 | 所有権 | 管理形態/方式 | 管理会社に全部委託/ |
| 用途地域 | 第一種住居地域 | ||
| 現況 | 空家 | 取引態様 | 媒介 |
取引条件等
| 引渡し | 相談 |
|---|
その他
| 設備 | システムキッチン、カウンターキッチン、室内洗濯機置場、エレベーター、都市ガス、オートロック、モニタ付インターホン、駐輪場、広縁、アルコーブ面積:1.22㎡(0.36坪) | ||
|---|---|---|---|
| 特徴 | 日当り良好、オーシャンビュー | ||
| 諸条件・相談 | 管理費・修繕積立金:調査中 ☆お客様のニーズに最適な一戸建て、マンション、土地などの不動産情報をご提供致します! | ||
| 情報登録日 | 2026年4月17日 | 情報更新予定日 | 2026年5月2日 |
| 物件番号 | 141370 | 建築確認番号 | |