廿日市市阿品台1丁目 中古一戸建て
- 物件価格
- 3,600万円(↓25.5%値下がり)
- 所在地
- 廿日市市阿品台1丁目
- 交通
- –
- 最寄バス停
- 「阿品台入口」 徒歩2分
- 学校区
- 阿品台東小 /-
※学校区は住所から自動判定したものであり、保証できる情報ではございません。正確な学校区はお問い合わせ下さい。
- 物件更新日:
- 2026年04月05日
- 写真入れ替え日:
- 2025年02月14日
- 価格改定日:
- 2026年04月04日
セールスポイント
【廿日市市阿品台1丁目 中古戸建て住宅】
自然と安らぎに満ちた緑豊かな住環境♪
約138坪の広い敷地が自慢の家☆
軽量鉄骨造2階建て 昭和54年2月築!
部屋数豊富な5DK+S♪♪
角地につき日当り・通風良好♪
買物施設や教育施設は徒歩圏内♪
のびのびと子育てができます☆
フジグランナタリー店まで車で約6分♪♪
*****
敷地内駐車場無し
外構工事により駐車場確保可能‼
リノベーションで思い通りにアレンジしてみませんか♪
≪ご見学できます♪お気軽にお問い合わせください♪≫
~周辺環境~
・ファミリーマート地御前店:徒歩3分(約270m)
・ピュアークック アジナモール店:徒歩9分(約650m)
・ナフコ阿品店:徒歩10分(約700m)
・つくし幼稚園:徒歩11分(約750m)
・廿日市市立阿品台東小学校:徒歩7分(約400m)
・廿日市市立阿品台中学校:徒歩6分(約400m)
《廿日市エリアの中古戸建て住宅、不動産情報は「住むりえ」にお任せください》
*****
◇住まいのことなら≪住むりえ≫に何でもお気軽にご相談ください♪♪
◇お客様のニーズに最適な一戸建て、マンション、土地などの不動産情報をご提供致します!!
◇注文住宅をご検討の方やリノベーション、売却をお考えの方もお気軽にご相談ください♪♪
「人型アイコン」を地図上にドラッグすることで『Google Street View』に切り替わります。
※地図上の「対象地」は「日本、〒738-0053 広島県廿日市市阿品台1丁目1−21」の場所を指しています。実際の場所ではない場合がございます。詳しくはお問い合わせください。
物件概要
| 種目 | 中古一戸建住宅 | ||
|---|---|---|---|
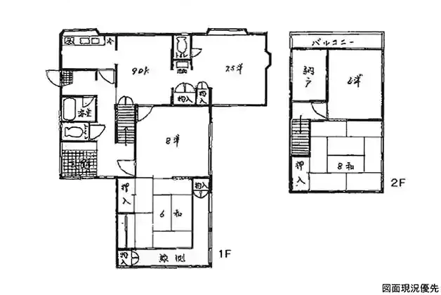
| 間取り | 5SDK | 間取り内訳 | |
| 土地面積 | 456.59㎡ | 私道面積 | |
| 建物面積 | 143.22㎡ | 建物構造規模 | 軽量鉄骨 2階建 |
| 築年月(竣工月) | 1979年02月 | 駐車場 | 無 |
| 建ぺい率/容積率 | 50%/100% | 都市計画 | 市街化区域 |
| 接道状況 | 南6m 公道 東4m 公道 角地 | ||
| 地目 | |||
| 土地権利 | 所有権 | 地勢 | |
| 用途地域 | 第一種低層住居専用地域 | ||
| 現況 | 空家 | 取引態様 | 媒介 |
取引条件等
| 引渡し | 相談 |
|---|
その他
| 設備 | プロパンガス、上水道、下水道、納戸 | ||
|---|---|---|---|
| 特徴 | 日当り良好、売主の契約不適合責任免責 | ||
| 諸条件・相談 | 敷地内駐車場無し、閑静な住宅街 ☆お客様のニーズに最適な一戸建て、マンション、土地などの不動産情報をご提供致します! | ||
| 情報登録日 | 2025年2月10日 | 情報更新予定日 | 2026年5月12日 |
| 物件番号 | 128092 | 建築確認番号 | |