広島市南区青崎1丁目 新築一戸建て No.2
- 物件価格
- 3,180万円
- 所在地
- 広島市南区青崎1丁目 No.2
- 交通
- JR「向洋」 徒歩9分
- 最寄バス停
- –
- 学校区
- 青崎小 / 大州中
※学校区は住所から自動判定したものであり、保証できる情報ではございません。正確な学校区はお問い合わせ下さい。
- 物件更新日:
- 2026年04月17日
セールスポイント
【南区青崎1丁目 新築戸建て住宅 No.2】
**ZEH基準適合住宅**
閑静な住宅地♪周辺交通量少なめ♪
令和8年3月完成。3階建ての2LDK+S☆
オール電化・エコキュート採用♪♪
開放的な対面式キッチン♪
3階に大容量の小屋裏収納有(約4.8帖)
駐車スペース:1台可‼
生活利便施設は徒歩圏内♪
公園・保育園・小学校近く!お子様も安心☆
◇◇同区画:No.1(3.080万円)有◇◇
≪ご見学できます♪お気軽にお問い合わせください♪≫
~周辺環境~
・広島青崎郵便局:徒歩4分(約270m)
・セブン-イレブン 広島青崎店:徒歩6分(約450m)
・藤三 向洋店:徒歩11分(約750m)
・広島市青崎保育園:徒歩3分(約230m)
・広島市立青崎小学校:徒歩2分(約120m)
・東青崎公園:徒歩3分(約240m)
《広島市南区エリアの新築戸建て住宅、不動産情報は「住むりえ」にお任せください》
*****
◇住まいのことなら≪住むりえ≫に何でもお気軽にご相談ください♪♪
◇お客様のニーズに最適な一戸建て、マンション、土地などの不動産情報をご提供致します!!
◇注文住宅をご検討の方やリノベーション、売却をお考えの方もお気軽にご相談ください♪♪
「人型アイコン」を地図上にドラッグすることで『Google Street View』に切り替わります。
※地図上の「対象地」は「日本、〒734-0053 広島県広島市南区青崎1丁目18−9」の場所を指しています。実際の場所ではない場合がございます。詳しくはお問い合わせください。
物件概要
| 種目 | 新築一戸建住宅 | ||
|---|---|---|---|
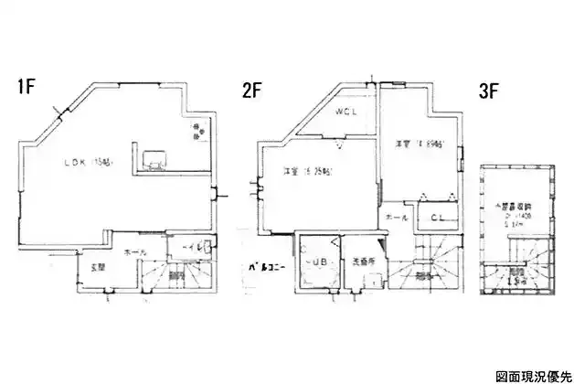
| 間取り | 2SLDK | 間取り内訳 | |
| 土地面積 | 63.65㎡ | 私道面積 | |
| 建物面積 | 63.78㎡ | 建物構造規模 | 木造 3階建 |
| 築年月(竣工月) | 2026年03月 | 駐車場 | 有 |
| 建ぺい率/容積率 | 60%/200% | 都市計画 | 市街化区域 |
| 接道状況 | 西4.8m 公道 接面2.7m 一方道路 | ||
| 地目 | |||
| 土地権利 | 所有権 | 地勢 | |
| 用途地域 | 第一種住居地域 | ||
| 現況 | 空家 | 取引態様 | 媒介 |
取引条件等
| 引渡し | 即時 |
|---|
その他
| 設備 | システムキッチン、カウンターキッチン、IHクッキングヒーター、ウォークインクローゼット、洗髪洗面化粧台、グルニエ、上水道、下水道、モニタ付インターホン | ||
|---|---|---|---|
| 特徴 | オール電化、エコキュート、ZEH基準適合住宅、断熱性能等級5、一次エネルギー消費量等級6 | ||
| 諸条件・相談 | ☆お客様のニーズに最適な一戸建て、マンション、土地などの不動産情報をご提供致します! | ||
| 情報登録日 | 2026年4月16日 | 情報更新予定日 | 2026年5月1日 |
| 物件番号 | 141327 | 建築確認番号 | |